CAFÉ-HOUSE
Miesto: Košice
Návrh: 2019
Realizácia: 2020-2022
Typ: Rekonštrukcia
Status: Dokončené
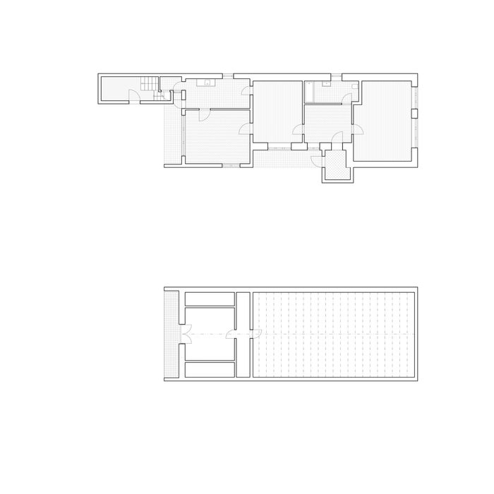
Jestvujúci rodinný dom, ktorý bol postavený v 60. rokoch sa nachádza v blízkosti Košíc.
Objekt v priebehu svojej existencie organicky rástol. Predošlý majiteľ postupne dostavoval nové miestnosti k existujúcim. Konštrukčný materiál sa líšíl podľa dostupnosti, takže niektoré miestnosti sú postavené z tehál, iné z kameňa, a pod. Investori, ktorí boli donedávna iba susedmi chceli obvodové steny a teda aj pôdorysnú stopu zachovať v čo najväčšej možnej miere.
Zadaním bolo vytvoriť flexibilný priestor, ktorý bude môcť využívať dvoma spôsobmi, pri čo najmenších zásahoch:
1. kaviareň s drobným ubytovaním
2. štandardný rodinný dom pre 4-člennú rodinu.
Táto zmena sa dá jednoducho docieliť odstránením dvoch montovaných priečok v hygienickom zázemí prevádzky.
Zázemie pre zamestnancov sa zmení na práčovňu, zatiaľ čo z WC pre zákazníkov sa stane plnohodnotná kúpeľňa.
V ostatných priestoroch nie sú nutné žiadne stavebné úpravy, s výnimkou zmeny osvetlenia v hlavnej kaviarenskej časti (obytnej miestnosti s jedálňou).







